发布时间:2014-02-25 共1页
| 一、案例分析题 |
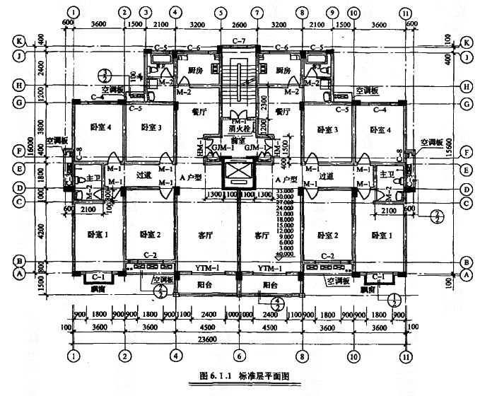
| 1.(40分) 本试题分三个专业(Ⅰ土建工程、Ⅱ工业蕾道安装工程、Ⅲ电气安装工程),请任选其中一题作答。若选作多题,按所答的第一题(卷面顺序)计分。 Ⅰ.土建工程 某小高层住宅楼建筑部分设计如图6.I所示,共12层。每层层高均为3米,电梯机房与楼梯间部分凸出屋面。墙体除注明者外均为200mm厚加气混凝土墙.轴线位于墙中。外墙采用50mm厚聚苯板保温。楼面做法为20mm厚水泥砂浆抹面压光。楼层钢筋混凝土板厚100mm,内墙做法为20mm厚混合砂浆抹面压光。为简化计算首层建筑面积按标准层建筑面积计算.阳台为全封闭阳台,⑤和⑦轴上混凝土柱超过墙体宽度部分建筑面积忽略不计,门窗洞口尺寸见表6.I.1,工程做法见表6.I.2. ![]() ![]() 问题: 1.依据《建筑工程建筑面积计算规范》(GB/T 50353-2005)的规定,计算小高层住宅楼的建筑面积。 将计算过程、计量单位及计算结果填入答题纸表6.I.1“建筑面积计算”。 2.依据《建筑工程工程量清单计价规范》附录B的工程量计算规则,计算小高层住宅楼二层卧室1、卧室2、主卫的楼面工程量以及墙面工程量.将计算过程、计量单位及计算结果按要求填入答题纸表6.I.2“分部分硬工程量计算”。 3.结合图纸及表6.I.2“工程做法”进行分部分项工程量清单的项目特征描述,将描述和分项计量单位填入答题纸表6.I.3“分部分项工程量清单”。 (计算结果均保留两位小数。) ![]() ![]() Ⅱ.管道安装工程 1.某住宅区室外热水管网布置如图6.Ⅱ所示。 管网部分分部分项工程量清单项目的统一编码见下表: ![]() 2.有一输气管线工程需用Φ11020×6的碳钢板卷管直管,按管道安装设计施工图示直管段净长度(不含阀门、管件等)共5000m,采用埋弧自动焊接。所用钢材均由业主供应标准成卷钢材。某承包商承担了该项板卷管直管的制作工程,板卷管直管制作的工料机单价和相关要求说明如下: ![]() 注:1.Φ1020×6的碳钢板卷管直管重量按150kg/m计; 2.按照以下规定:碳钢板卷管安装的损耗率为4%。每制作1t的板卷管直管工程量耗用钢板材料1.05t;钢卷板开卷与平直的施工损耗率为3%; 3.管理费、利润分别按人工费的60%、40%计。 问题: 1.将各项管道和管道支架制作安装清单项目工程量的计算过程,分别写在答题纸相应位置。根据《建设工程工程量清单计价规范》的有关规定,编制如图6.Ⅱ所示管网系统的分部分项工程量清单项目,将结果填入答题纸表6.Ⅱ.1“分部分项工程量清单表”第2、3、4、5栏内。 2.在答题纸相应位置写出答题纸中要求的有关项目的计算过程: (1)Φ1020×6碳钢板直管制作工程量; (2)制作碳钢板直管前,需对成卷碳钢板进行开卷与平直的工程量; (3)发包人所供应标准成卷钢材的数量及其费用; (4)承包人应该向发包方计取的该项钢板卷管制作分部分项工程量清单费用数额。依据《建设工程工程量清单计价规范》《全国统一安装工程预算定额》的有关的规定,计算出Φ1020×6碳钢板直管制作(清单项目的统一编码为030613001)的分部分项工程量清单综合单价,将相关数据填入答题纸表 6.Ⅱ.2“分部分项工程量清单综合单价计算表”中。 (以上计算结果保留两位小数。) ![]() 说明 1.本图所示为某住宅小区室外热水管网平面布置图.该管道系统工作压力为1.0MPa.热水温度为95℃.图中平面尺寸均以相对坐标标注.单位以m计,详图尺寸以mm计。 2.管道敷设管沟(高600mm×宽800mm)内,管道均采用20#碳钢无缝钢管,弯头采用成品冲压弯头、异径管,三通现场挖眼连接,管道系统全部采用手工电弧焊接。 3.闸阀型号为Z41H-1.6,止回阀型号为H41H-1.6.水表采用水平螺翼式法兰连接,管网所用法兰均采用碳钢平焊法兰连接. 4.管道支架为型钢横担.管座采用碳钢板现场制作,Φ325×8管道每7m设一处,每处重量为16kg;Φ159×6管道每6m设一处,每处重量为15kg;Φ108×5管道每5m设一处。每处重量为12kg.其中施工损耗率为6%. 5.管道安装完毕用水进行水压试验和消毒冲洗,之后管道外壁进行除锈,刷红丹防锈漆二遍。外包岩棉管壳(厚度为60mm)作绝热层。外缠铝箔作保护层。 6.管道支架进行除锈后,均刷红丹防锈漆、调和漆各二遍。 Ⅲ.电气安装工程 某氮气站动力安装工程如图6.Ⅲ所示: 1.PD1、PD2均为定型动力配电箱,落地式安装,基础型钢用10#槽钢制作.其重量为10kg/m. 2.PD1至PD2电缆沿桥架敷设-其余电缆均穿钢管敷设.埋地钢管标准高为-0.2m.埋地钢管至动力配电箱出口处高出地坪+0.1m. 3.4台设备基础标高均为+0.3m.至设备电机处的配管管口高出基础面0.2m,均连接1根长0.8m同管径的金属软管。 4.计算电缆长度时不计算电缆敷设弛度、波形弯度和交叉的附加长度,连接电机处,出管口后电缆的预留长度为1m,电缆头为户内干包式,其附加长度不计。 5.电缆桥架(200×100)的水平长度为22m. 6.表中数据为计算该动力安装工程的相关费用: ![]() 管理费和利润分别按人工费的55%和45%计。 分部分项工程量清单的统一编码为: ![]() 问题: 1.根据图示内容和《建设工程工程量清单计价规范》的规定,计算相关工程量和编制分部分项工程量清单。将配管、电缆敷设和电缆桥架工程量的计算式填入答题纸上的相应位置,并填写答题纸表6.Ⅲ。1 “分部分项工程量清单”。 2.假设电力电统YJV4×16穿管敷设的清单工程量为30m.依据上述相关费用数据计算配电箱(落地式安装)和电力电缆YJV4×16穿管敷设二个项目的综合单价,并分别填入答题纸表6.Ⅲ。2和表6.Ⅲ。3 “分部分项工程量清单综合单价计算表”。 (计算过程和结果均保留两位小数。) ![]() |
| 正确答案: Ⅰ.土建工程 问题1. ![]() 问题2:(12分) ![]() 问题3:(12分) ![]() ![]() Ⅱ.管道安装工程 问题1. 写出下列分部分项清单项日工程量的计算式: 1.管道DN300工程量的计算式: (940-520)+2×3.5=420+7=427(m) (1.5分) 2.管道DN150工程量的计算式: (400-305)+1=96(m) 3.管道DN100工程量的计算式: (528-305+2×2.5)+(528-400-1)+(940-935)×2=228+127+10=365(m) (2分) 4.管道支架制作安装工程量的计算式: (427÷7×16)+(96÷6×15)+(365÷5×12)=976+240+876=2092(kg) (2分) ![]() ![]() 问题2. 各有关项目的计算过程; 1.Φ1020×6碳钢板直管制作工程量。 5000×0.15×1.04=780(t)(1.5分) 2.制作碳钢板直管前,需对成卷碳钢板进行开卷与平直的工程量。 780×1.05=819(t) (1分) 3.业主应供应标准成卷板材的数量及其费用。 标准成卷板材的数量: 819×(1+3%)=843.57(t) (1分) 标准成卷板材的费用:843.57×4800=4049136(元) (1分) 4.承包商应向业主计取扩谈项碳钢板直管制作分部分项工程量清单费用数额; 5320536-4049136=1271400(元) (1分) ![]() 1.电气安装工程 问题1 1.钢管Φ25工程量计算: 10+7+(0.2+0.1)×2+(0.2+0.3+0.2)×2=19(m) (2分) 2.钢管Φ40工程量计算: 8+12+(0.2+0.1)×2+(0.2+0.3+0.2)×2=22(m) (2分) 3.电缆YJV4×2.5工程量计算: 10+7+(0.2+0.1)×2+(0.2+0.3+0.2)×2=19(m) (1.5分) 4.电缆YJV4×16工程量计算: 8+12+(0.2+0.1)×2+(0.2+0.3+0.2)×2=22(m) (1.5分) 5.电缆桥架200×100工程量计算: 22+[3-(2+0.1)]×2=23.8(m) (2分) 6.电缆YJV4×50工程量计算: 22+[3-(2+0.1)]×2=23.8(m) (1.5分) ![]() ![]() 问题2:(20.5分) ![]() ![]() ![]() 备注:在表6.Ⅲ.3中: ![]() |